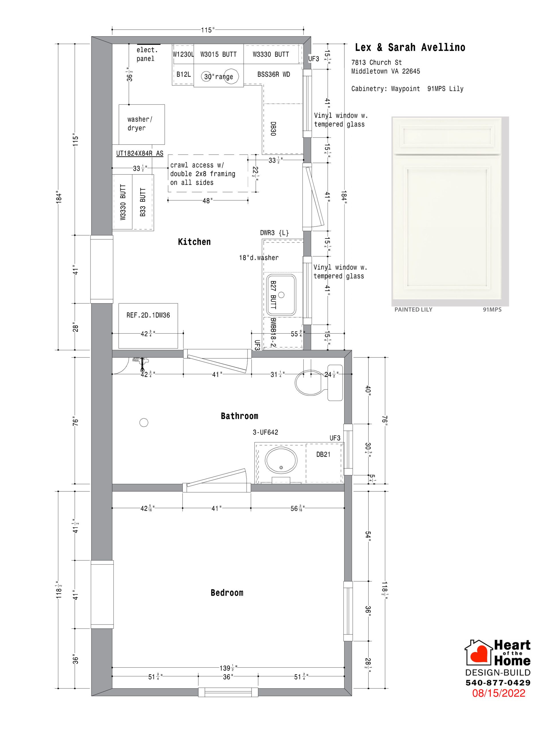
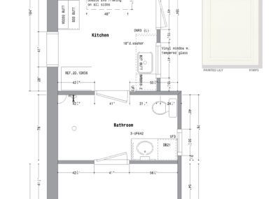
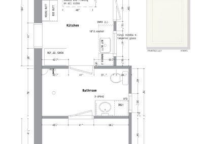
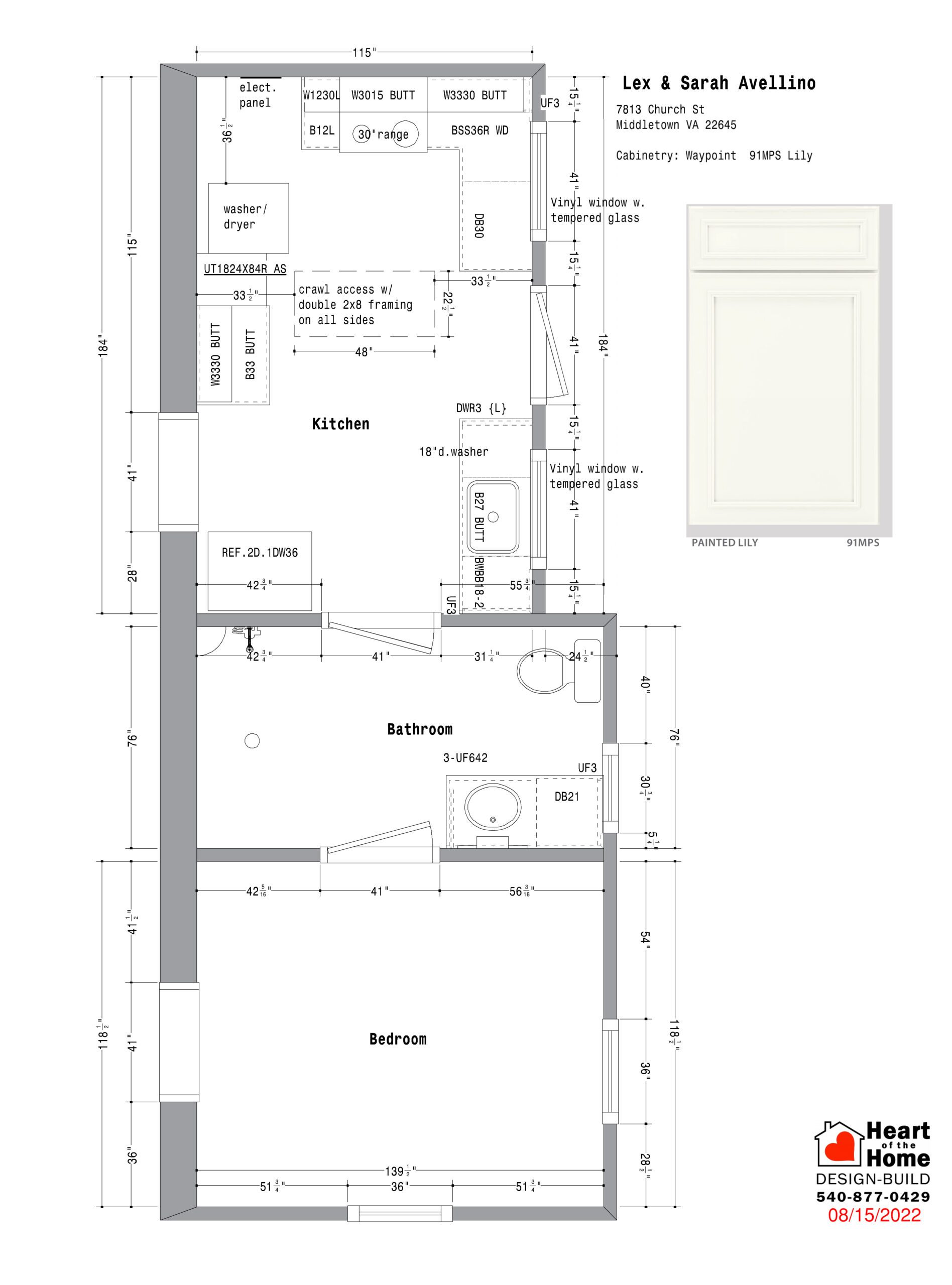
Avellino Remodel Narration and Explanation
This job was a labor of love. Friends from church found out that her father was diagnosed with ALS disease and that they would be moving from Texas to Middletown, VA to be close to family.
This job was a labor of love. Friends from church found out that her father was diagnosed with ALS disease and that they would be moving from Texas to Middletown, VA to be close to family.