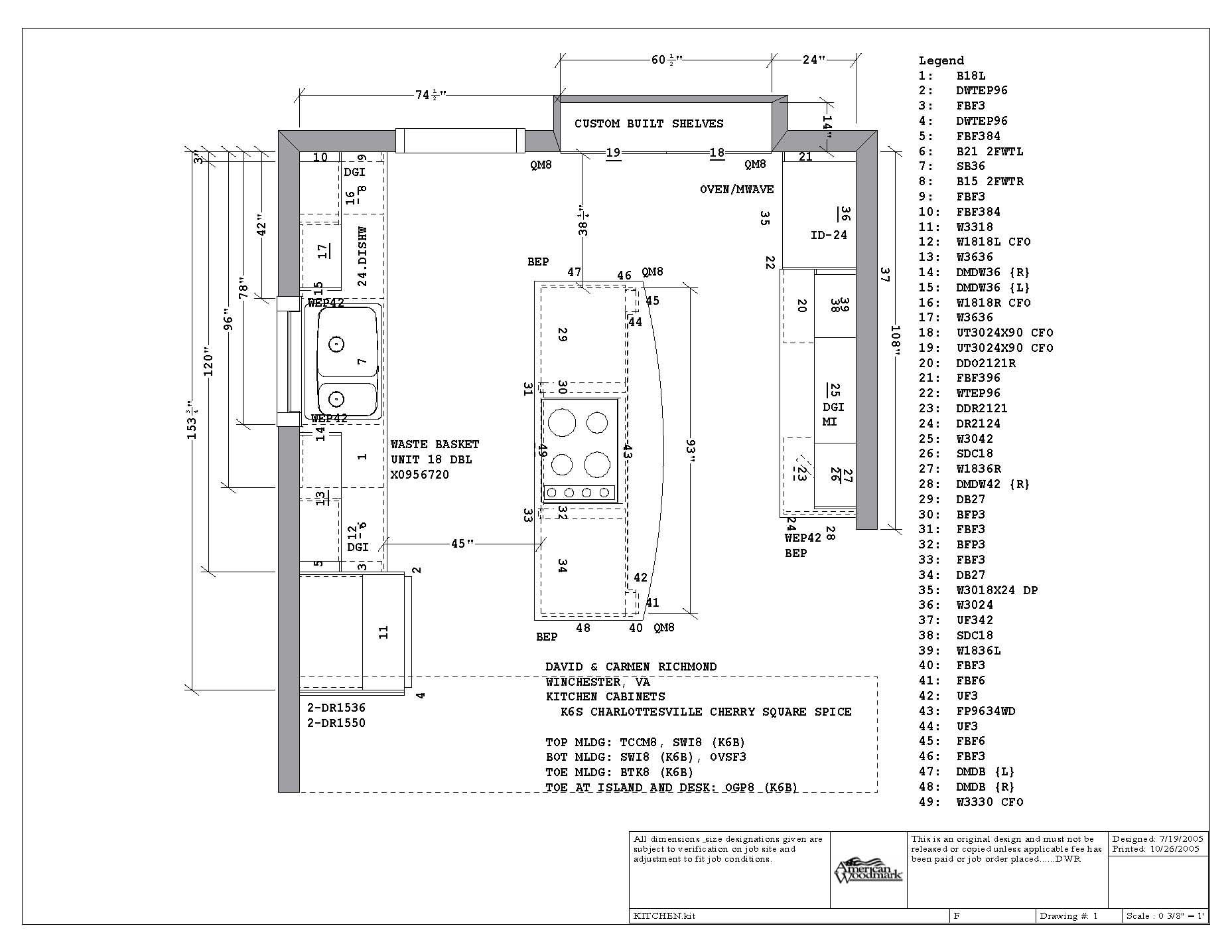
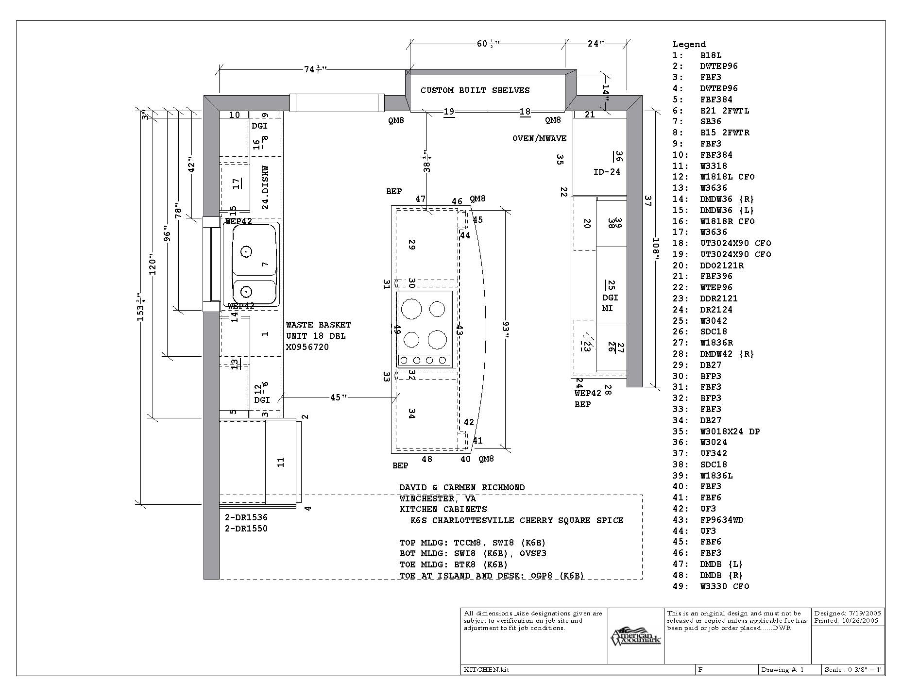
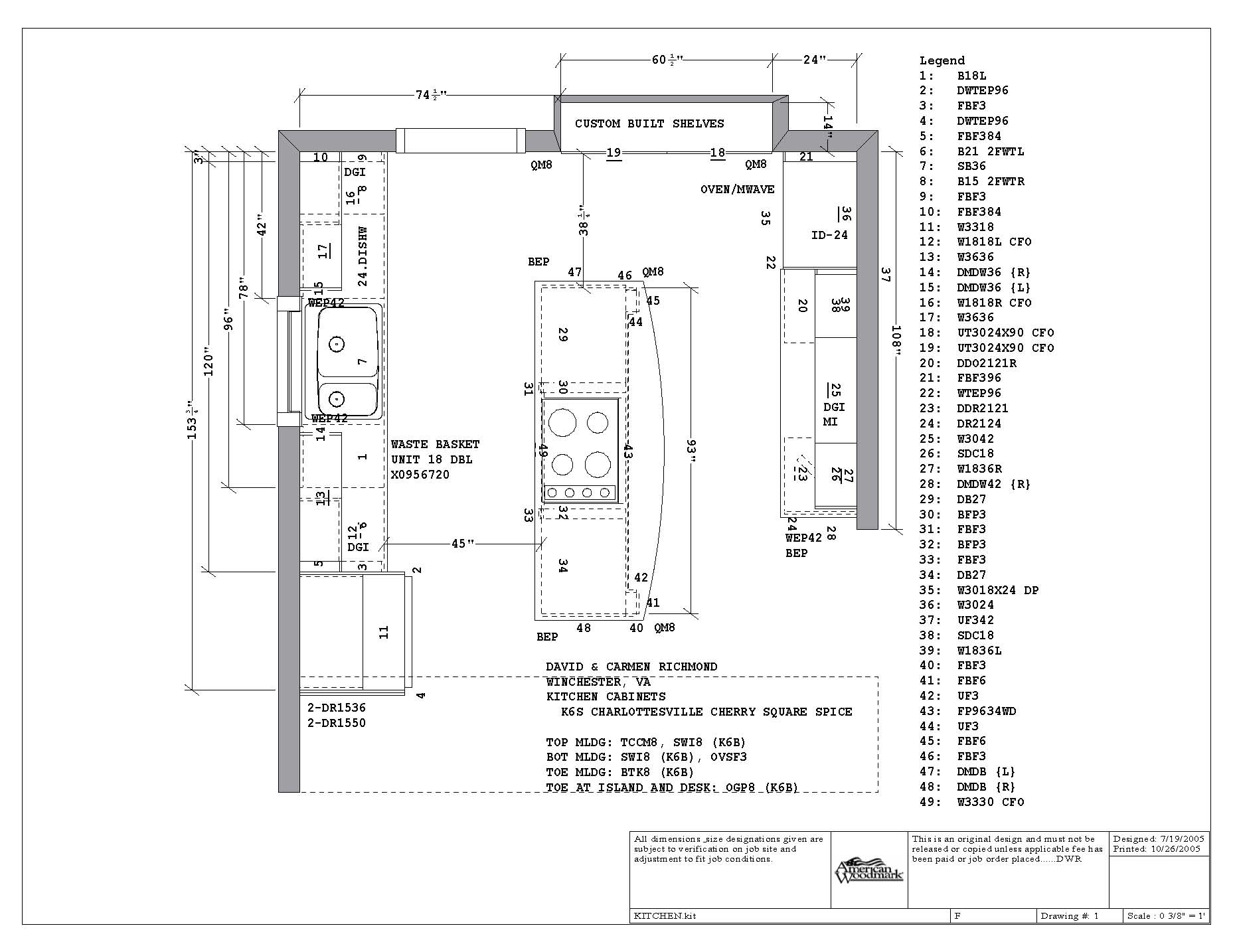
Richmond Kitchen Design-Build 2005
2003…Our kitchen Design-Build was part of the Design-Build of our whole home
2003…Front elevation of Phase 2
Before…This is what I do, design & build
200407 framing the house
Before…2020 floor plan
Before…the work triangle, ALL NKBA guidelines were addressed
During…Installing the cabinets
During…Countertops installed
After…A lovely, bright and cheery place to be
After…Open, bright & inviting
After…view from above
After…Desk behind the island, very helpful
After…Custom appliance garages help to contain the clutter











